10 17458 100 Avenue Surrey, British Columbia V4N 4L4
$975,000Maintenance,
$312.08 Monthly
Maintenance,
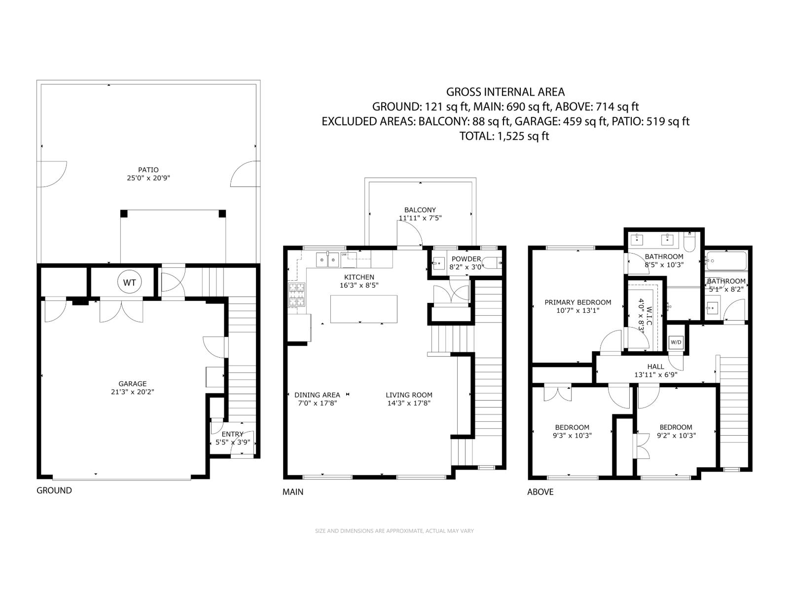
$312.08 MonthlyNO GST! 2024 built home with 90% of 2-5-10 year Warranty and no GST! The best positioned unit available in Headwater; nestled between Tynehead and Surrey Bend Regional Parks with the convenience of quick access to HWY 1 and HWY 15 for commuters. The B1 floorplan is perfect for entertaining; with just under 700 sqft of open concept living and 9' ceilings on the main floor. The kitchen features; Samsung stainless steel appliances incl gas range, oversized island with room for 4 at the breakfast bar plus a balcony right off the kitchen for grilling. All 3 bedrooms, 2 full baths and full-sized laundry are upstairs including the primary suite with a walk-in closet, large ensuite with double sinks and treed view. Also; Air-conditioning, Central Vac, fenced yard and dbl car garage. (id:56153)
Open House
This property has open houses!
2:00 pm
Ends at:4:00 pm
Property Details
| MLS® Number | R3034269 |
| Property Type | Single Family |
| Neigbourhood | Cloverdale |
| Community Features | Pets Allowed With Restrictions, Rentals Allowed |
| Parking Space Total | 2 |
| Storage Type | Storage |
| Structure | Playground |
Building
| Bathroom Total | 2 |
| Bedrooms Total | 3 |
| Age | 1 Years |
| Amenities | Air Conditioning, Clubhouse, Laundry - In Suite, Storage - Locker |
| Appliances | Washer, Dryer, Refrigerator, Stove, Dishwasher, Garage Door Opener, Central Vacuum |
| Architectural Style | 3 Level |
| Basement Type | None |
| Construction Style Attachment | Attached |
| Cooling Type | Air Conditioned |
| Fixture | Drapes/window Coverings |
| Heating Type | Forced Air, Heat Pump |
| Stories Total | 3 |
| Size Interior | 1,525 Ft2 |
| Type | Row / Townhouse |
| Utility Water | Municipal Water |
Parking
| Garage |
Land
| Acreage | No |
| Landscape Features | Garden Area |
| Sewer | Sanitary Sewer, Storm Sewer |
Utilities
| Electricity | Available |
| Natural Gas | Available |
| Water | Available |
https://www.realtor.ca/real-estate/28698053/10-17458-100-avenue-surrey
Contact Us
Contact us for more information



































